14 900 CZK за месяц
+ 4 420 чешских крон за услуги, сборы и энергию + 25 000 чешских крон возвращаемый депозит + административный сбор
Вчера
Кирпич
Отличное
Личная
2. этаж из Итого 2
25 m2
25 m2
500
2,6
Немедленно
Водоснабжение
Интернет
230 В
Железная дорога Шоссе Дорога Городской общественный транспорт Автобус
Класс G
870208332
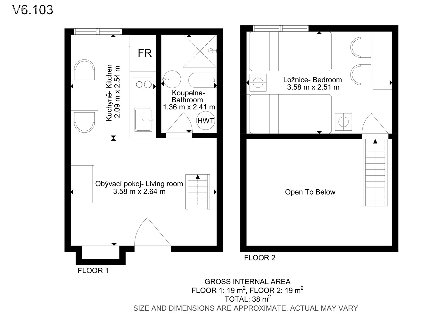
Предлагаем в аренду отремонтированный блок V6.103 общей площадью 25 м2, который доступен для немедленного заселения. В том же комплексе имеется несколько других единиц размером 1+кк и 2+1 для 24 человек. Речь идет о полностью оборудованном арендуемом помещении размером 1+1. В вашем распоряжении современная кухня, включая холодильник, стеклокерамическую плиту, микроволновую печь, чайник, вытяжку и раковину. На кухне также есть обеденный стол со стульями. В комнате вы найдете две просторные кровати с удобными матрасами. У каждой кровати есть тумбочка с лампой. Комната оснащена рабочим столом с местом для хранения, двумя удобными стульями и просторным шкафом. В ванной комнате есть душевая кабина, туалет и умывальник с зеркалом. В блоке предоставляется доступ в интернет. Преимущества для арендаторов: доступ в интернет в блоке скидка на парковку 1390 крон в месяц наружная зона отдыха, включая места для сидения, гриль и настольный теннис наружная тренировочная площадка (бесплатно) и внутренний тренажерный зал (платно) у нас нет недружелюбных соседей Блоки расположены в престижном районе, в непосредственной близости от центра Брно. Сам центр Брно находится в пешеходной доступности. Неподалеку находится один из крупнейших транспортных узлов в Брно – площадь Мендла, что обеспечивает безпроблемное сообщение с брненскими университетами. В окрестностях имеются магазины, рестораны, бары, тренажерные залы и другие услуги, которые сделают вашу жизнь в этом месте приятнее. Мы с удовольствием предоставим информацию о текущей доступности и условиях. Владелец оставляет за собой право выбора арендатора на основании собственных требований. Мы будем рады встретиться с вами на личной экскурсии.
Актуальный курс валют

Заинтересовала квартира? Оставьте нам Вашу заявку. Наши операторы ответят на все Ваши вопросы в кратчайшие сроки.