17 000 CZK за месяц
Сегодня
Кирпич
Отличное
Личная
Центр муниципального образования
2. этаж из Итого 7
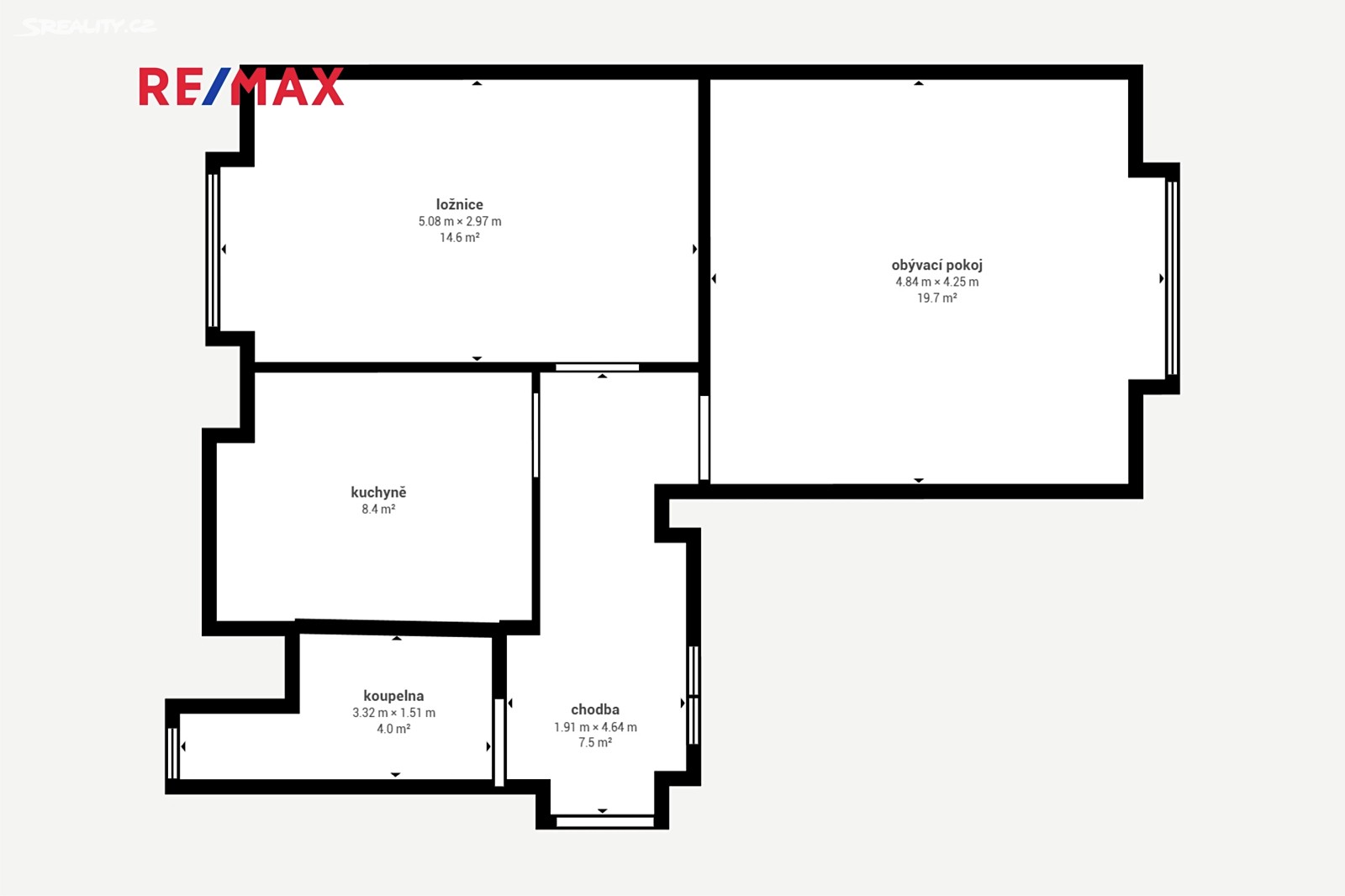
203 m2
54 m2
54 m2
2 m2
6 m2
Немедленно
1945
Газопровод
Канализация
459764556
Актуальный курс валют

Заинтересовала квартира? Оставьте нам Вашу заявку. Наши операторы ответят на все Ваши вопросы в кратчайшие сроки.