21 800 000 CZK за объект
Сегодня
Кирпич
Отличное
Личная
3. этаж из Итого 5
150 m2
Локальное газовое
Класс E
Да
616833868
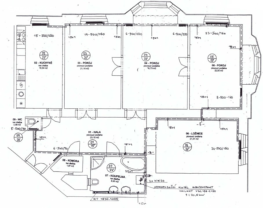
Предлагаем на продажу просторную, светлую квартиру 4+1 (150 м²) после ремонта в районе Прага 5. Квартира с прекрасным видом на Вышеград и ориентацией на юг и восток расположена на 3-м этаже красивого дома в стиле модерн с новым фасадом, крышей и лифтом. В квартире просторный холл (23 м²), кухня (17 м²), гостиная (27 м²), спальня со встроенными шкафами (21 м²), две другие комнаты (21 и 22 м²), ванная комната с ванной, душем, двумя раковинами и туалетом (9 м²), подсобное помещение и отдельный туалет с раковиной. Все комнаты проходные. На кухне установлена индукционная стеклокерамическая плита, вытяжка, духовой шкаф, посудомоечная машина, холодильник с морозильной камерой и стиральная машина. На кухне, в ванной комнате, туалете и при входе в квартиру – плавающие полы и плитка. В ванной комнате – теплый пол, окна с отличной теплоизоляцией. Отопление газовым котлом Buderus, расположенным в техническом помещении. Рядом – входная дверь с охраной. Проведен интернет. Возможность хранения велосипедов, колясок и т.д. в общем подвале. Парковка перед домом (синяя зона). Отличная транспортная доступность.Общественная доступность — квартира расположена на тихой улице в пражском районе Смихов, между станциями метро «Смиховске надражи» и «Андел». Она идеально подходит для представительства компании, офиса компании или в качестве инвестиции. Цена: 21 800 000 чешских крон. Энергоэффективность здания: E.
Актуальный курс валют

Заинтересовала квартира? Оставьте нам Вашу заявку. Наши операторы ответят на все Ваши вопросы в кратчайшие сроки.