8 990 000 CZK за объект
Продажа напрямую от владельца, без комиссии РК
Сегодня
Кирпич
Новое здание
Личная
Окраина муниципального образования
1. этаж
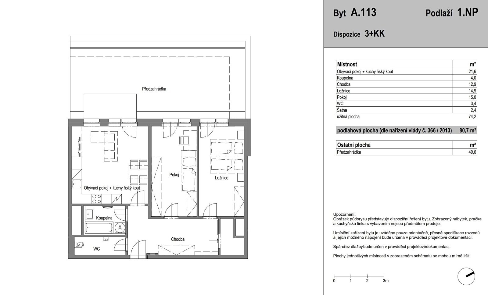
130 m2
50 m2
Да
12 m2
1
01.08.2028
2028
01.03.2028
Водоснабжение
Центральное газовое
Газопровод
Канализация
230 В
Шоссе Дорога Автобус
Бетон Мощеная Асфальт
Класс B указом 264/2020 в соответствии с
Да
2658726732
Residence u Sv. Eliáše - это новый жилой проект, расположенный в деревне Гуры, которая находится примерно в 5 километрах от центра города Ческе-Будеёвице. Участок находится в стороне от основной жилой застройки. Проект имеет стратегическое расположение - в непосредственной близости от основных дорог, ведущих в Ческе-Будеёвице, и автомагистрали D3, до которой можно добраться за несколько минут на автомобиле. Благодаря этому можно с комфортом добираться не только до областного центра, но и до других частей Южночешского края. Всего в рамках проекта будет построено 191 (49 продано) жилое помещение различных планировок от 1+кк до 4+кк. Квартиры будут расположены в трех зданиях, что позволит обеспечить достаточное освещение и пространство. В квартирах будет подвал и собственное парковочное место, эти аксессуары оплачиваются дополнительно к цене за единицу жилья. Большинство квартир будут включать балкон, террасу или палисадник. Проект рассчитан на удовлетворение потребностей широкого круга жителей - частных лиц, семей с детьми и пожилых людей. На территории комплекса находится недавно построенная начальная школа с пятью классными комнатами, собственным кафетерием и современным спортивным залом. Гимнастический зал будет служить не только школьникам, но и населению для занятий спортом и проведения досуга. В шаговой доступности от резиденции находится детский сад, что позволит обеспечить дошкольное воспитание. В дополнение к школьным объектам проект включает в себя укомплектованное медицинское учреждение. Проект дополнен общественными зелеными зонами, парками и детскими площадками, которые будут доступны всем жителям резиденции. Для пешеходов и колясок предусмотрены мощеные дорожки, которые обеспечат безопасное передвижение внутри комплекса и связь с окружающей природой. Велосипедная дорожка ведет к центру Ческе-Будеёвице, что позволяет использовать удобную альтернативу транспорту. Транспортная доступность - один из ключевых аспектов проекта. Большим преимуществом является доступ к автомагистрали D3, а непосредственно в районе находится остановка общественного транспорта, которая свяжет проект с городом, что облегчит поездки в город без использования автомобиля. Поездка на автомобиле до центра Ческе-Будеёвице занимает около 9 минут, до Глубока-над-Влтавоу - 12 минут, а до Тршебоня - около 17 минут. Чески-Крумлов находится в 25 минутах езды на автомобиле, а курорты на Липно - в 1 часе. Технический дизайн квартир и их планировка отвечают современным требованиям к комфорту и эффективности использования пространс
Актуальный курс валют

Заинтересовала квартира? Оставьте нам Вашу заявку. Наши операторы ответят на все Ваши вопросы в кратчайшие сроки.