2 490 000 CZK per property
Today
Panel
In very good condition
Personal
3. floor of total 4
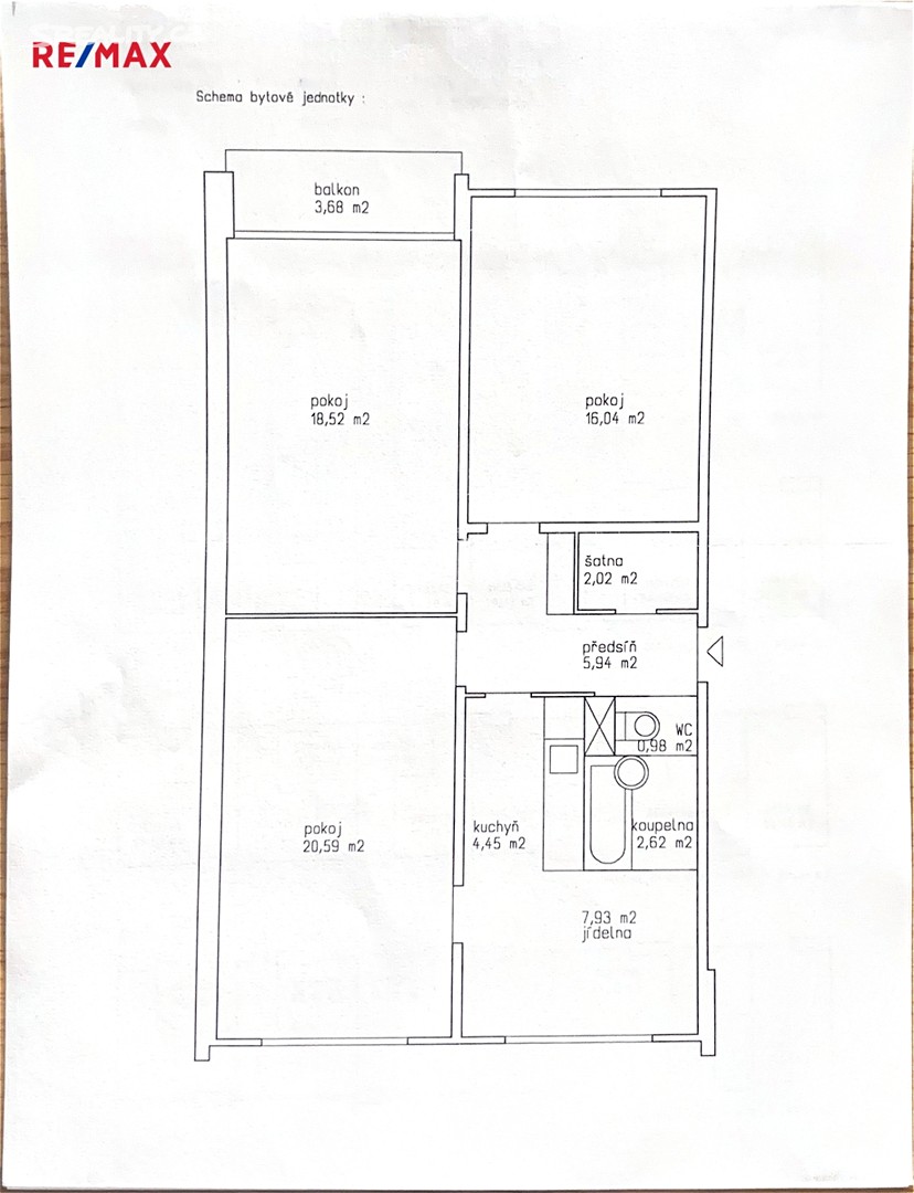
823 m2
82 m2
86 m2
3 m2
3 m2
Immediately
1980
Water supply
Gas pipeline
Sewerage
Phone Internet Cable TV
230 V
Train Road Urban public transportation Bus
Asphalt
Class C Coll. 264/2020 complying with
2662675276
Current exchange rates

Interested in this one? Leave us a message and will contact you shortly.