6 742 000 CZK per property
Today
Mixed
New homes
Personal
6. floor of total 10
40 m2
40 m2
40 m2
6 m2
Yes
Road Urban public transportation
24843084
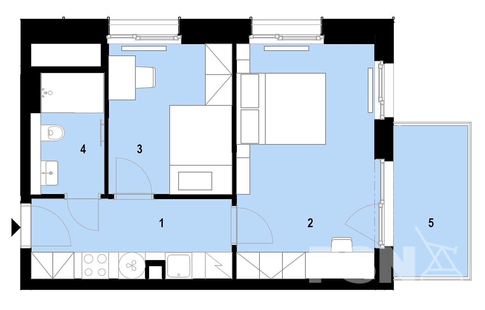
A unit that can generate income. If you are looking for an investment with an above-standard return, this unit is exactly what performs best on the Brno market. The 2+1 layout and walking distance to the city centre in a town with one of the highest concentrations of students in the Czech Republic make it possible to rent out each room separately. This model has long been one of the most economical and ensures high occupancy with a significantly higher monthly income.<br /><br />The 2+1 layout and a total area of 39.7 m² on the 2nd floor provide a thoughtfully designed space that is ideal both for investment purposes and for future owner-occupied living. The unit offers two non-walk-through rooms, a kitchen, an elegant bathroom with a shower and toilet, and additionally an east-facing balcony that keeps the apartment beautifully bright throughout the day.<br />The space will be delivered in a high standard — windows with triple glazing, finished floors, a fully equipped bathroom, and a space prepared for the installation of a kitchen. Preparation for external shading is also available. A storage unit and a parking space must be purchased with the unit.<br /><br />The Neon&Xenon building represents modern living with full facilities and excellent accessibility, offering a wide range of residential services: a rooftop terrace with a grill, a workout zone, laundry rooms, a community room, a café, a bike storage room, and a pram room. The building will be part of the newly emerging Brno Jedna district, featuring a square, an adjacent park, cycling paths, sports areas, and other services. You can reach the city centre within 5 minutes by public transport or by car.<br /><br />The expected completion and handover of the units is at the end of 2027.
Current exchange rates

Interested in this one? Leave us a message and will contact you shortly.