12 500 Kč za měsíc
+ zálohy na služby, + vratná kauce
Včera
Cihlová
Po rekonstrukci
Osobní
3. podlaží z celkem 2
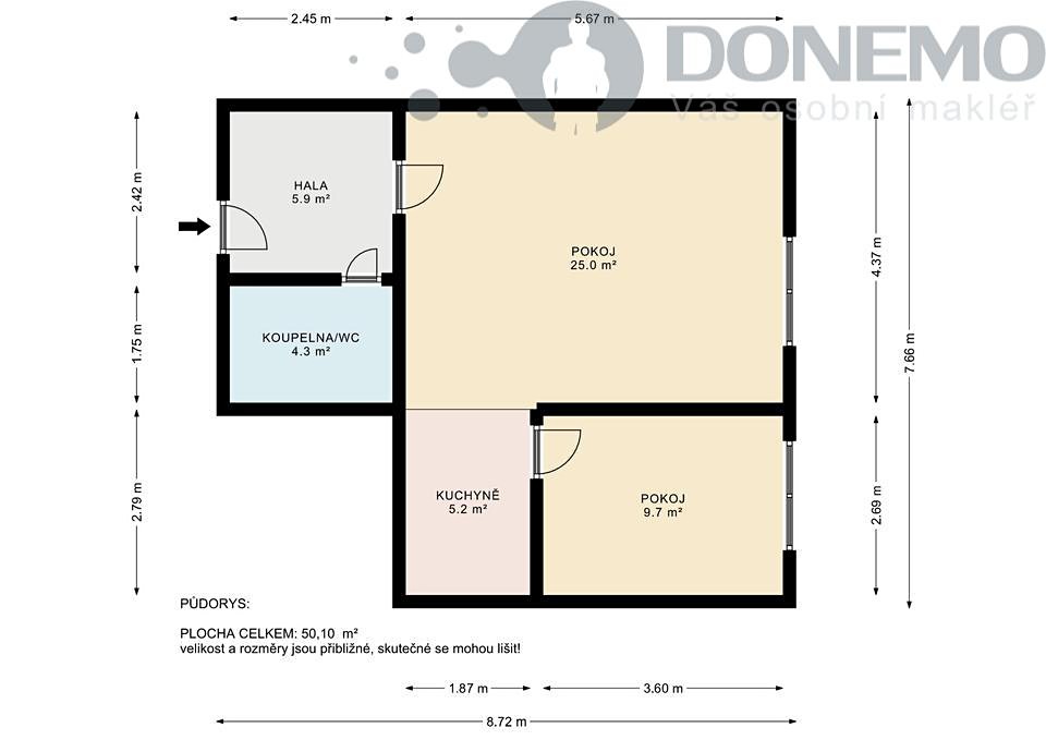
51 m2
51 m2
Ihned
Vodovod
Ústřední plynové
Veřejná kanalizace
Internet
230V
Asfaltová
3399164748
Nabízíme pronájem bytu ve velmi oblíbené lokalitě Olomouci Chválkovice. Dispozice bytu je 2+kk + sklepní kóje. Byt se nachází ve 2 patře a jeho výměra je cca 51 m2 + sklepní kóje. Byt se pronajímá s kuchyňskou linkou včetně sporáku. V koupelně je vana, přípojka na pračku a toaleta. Kousek nákupní park Bělidla, TS Bohemia, Lídl , škola, školka. Volný od ihned. Ideální pro jednu osobu nebo pár. Cena 12 500 + zálohy na služby 3.500 Kč-(tato výše záloh kryje předpokládanou spotřebu pro 2 osoby a je v tom elektrická energie, plyn, studená voda, úklid společných prostor, poplatek za správu, zimní úklid). Kauce vratná ve výši 37 500 Kč(možno uhradit ve dvou splátkách). Odměna rk 1 nájem. Vhodné k dlouhodobému pronájmu s možností trvalého bydliště. Vhodné pro 1 osobu maximálně pár.
Aktuální kurz

Máte zájem o tento byt? Nechte nám Vás požadavek. Naše operátoři v nejkratší době zodpoví Vase dotazy