9 800 000 Kč za nemovitost
5876
Dnes
Panelová
Po rekonstrukci
Osobní
Klidná část obce
5. podlaží z celkem 5 včetně 1 podzemního
69 m2
71 m2
2 m2
Vodovod
Ústřední dálkové
Veřejná kanalizace
230V
Vlak Dálnice Silnice MHD Autobus
Dlážděná
Třída C - Úsporná č. 78/2013 Sb. podle vyhlášky
Zobrazit průkaz energetické náročnosti budovy
2678530892
Jednopodlažní
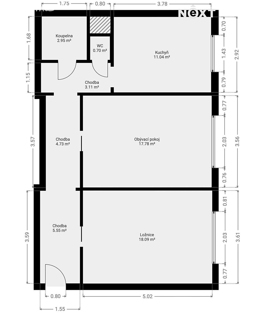
Nový prostor pro život i investici – 2+1 v OV, 69,4 m², Praha 10-Strašnice, Sečská. Nabízíme ke koupi prostorný byt 2+1 o celkové výměře 69,4 m², včetně příslušenství, v atraktivní části Prahy 10. Byt se nachází ve 4. patře panelového domu s celkově 20 byty, což zaručuje klid, přehlednost a dobře fungující SVJ. Dům je po revitalizaci — zateplení, nová fasáda, nová střecha, plastová okna, stoupačky, vstupní dveře, poštovní schránky. Byt prošel rekonstrukcí před 2 lety — v rámci ní byly kompletně řešeny elektrické rozvody, voda, odpady, omítky, dlažby a obklady, položené byly nové parkety, vyměněny dveře. Jádro je zděné. Navíc sklepní kóje 2 m², a společné prostory domu: kolárna a kočárkárna — prostě když se vám nechce šlapat s kolem do bytu. Dispozice bytu a vybavení: • oddělené WC a koupelna, v koupelně vana + sprcha + umyvadlo, • v kuchyni zůstávají vestavěné spotřebiče — lednice s mrazákem, trouba, plynový sporák, myčka, digestoř • v chodbě vestavěné skříně, • topení ústřední i ohřev vody, • media - voda, elektřina, plyn, Byt je připraven k okamžitému nastěhování nebo k pronájmu — ideální jak pro vlastní bydlení, tak jako investiční příležitost. Dispozice je příjemně logická, žádné náhodné výklenky ani místnosti, které by si hrály na únikovou hru. Kuchyň je připravená, aby vás podpořila v pokusech o michelinský zážitek — nebo aspoň rychlé těstoviny. Obývák má ideální velikost na to, aby se tu odehrával život i večerní Netflixové maratony. Sečská je ulice, kde se žije dobře — dost klidná na odpočinek, dost blízko centra na pohodlný život. • Školy a školky: o Základní škola Gutova o Další základní školy v dosahu: ZŠ Olešská nebo ZŠ V Rybníčkách o Pro menší děti: v pěší vzdálenosti je GENIUS Kindergarten Strašnice — soukromá moderní školka v angličtině. Takže pokud hledáš lokalitu pro rodinu s dětmi — bingo. • Obchody, služby, dostupnost všeho potřebného: Strašnice jako městská část nabízí běžné i nadstandardní služby — obchody, obchůdky, malé podniky, ordinace, drogerie, lékárny, drobné trhy a prostě vše. • Volnočasové vyžití a relax: Hned za rohem je areál Gutovka — sport, zábava, příroda a relax v jednom: dětská hřiště, skatepark, in-line dráha, kluziště, minigolf. Součástí areálu je také příjemná Restaurace Gutovka. Dopravní dostupnost • Nejbližší stanice metra je Strašnická (linka A) • Díky tramvajím a autobusům je oblast dobře propojená, a pokud někdo jede autem nebo potřebuje občas přibrzdit — parkování a dostupnost nejsou problém. Takže jste v klidu, i když si chcete odskočit do centra, do divadla, do práce, nebo pro kolu. Je to bydlení v klidné části Prahy, a přitom s rychlým přístupem ke sportu, zábavě a přírodě. Pouze u nás vám zajistíme moderní financování až na 30 let, bez ohledu na věk a prokazování příjmů, či nutnosti předkládat daňové přiznání (u podnikatelů). Zeptejte se nás a bydlete chytře! Pro komunikaci uvádějte evidenční číslo zakázky N115076.
Aktuální kurz

Máte zájem o tento byt? Nechte nám Vás požadavek. Naše operátoři v nejkratší době zodpoví Vase dotazy